Startseite
Büro
Leistungen
Projekte
Partner
Video
Für meine Kunden habe ich die Planbearbeitung
übernommen und erfolgreich fertiggestellt.
Hier einige Beispiele:
Bewehrung der Stb.-Decke und Stb.-Bodenplatte
mit Streifenfundamenten.
Bauvorhaben: BOWA Electronic GmbH
Bewehrung der Stb.-Decken.
Bauvorhaben: Sachsenheim
Bewehrung des Stb.-Drosselschachtes
Bauvorhaben: Erschließung Baugebiet Dichbach
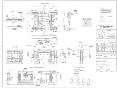
Bewehrung des Stb.-Regenwasserpumpwerkes
mit Technikhaus
Bauvorhaben: Abwasserbeseitigung Stadt Hennef
Bewehrung der Eisenbahnbrücke in Obernau
Bauvorhaben: Beseitigung BÜ, Die Bahn DB.
Mattenbewehrung der Decke
Bewehrung der Decke 1
Bewehrung der Decke 2
Bewehrung der Decke 3
Bewehrung der Bodenplatte 1